LAKELAND 28X60
FAC28603A
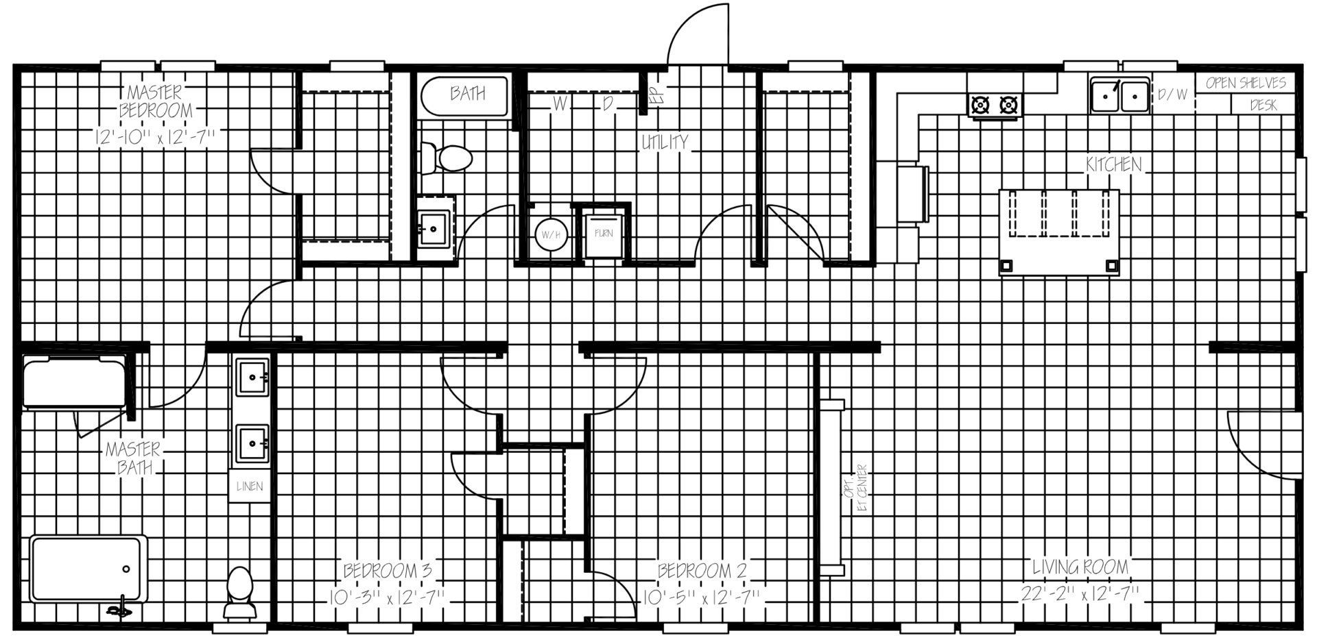
28 x 60 | 1580 sq. ft. | 3 Bed 2 Bath
FLOORPLAN
FEATURES
EXTERIOR
- Low E Thermal Pane Windows with Argon Gas
- Vinyl Siding w/ OSB Wrap & Vapor Barrier
- Craftsman 38x80 Residential Front Door
- Cottage Rear Door
- 2x6 Floor Joist 16” on Center
- Deluxe Hitch End Treatment
- Metal Roof
INSULATION
- R-21 Blown Fiberglass Roof (Formaldehyde Free)
- R-11 Fiberglass Insulation in Walls (Kraft Back)
- R-11 Fiberglass Insulation in Floors
- Thermal Zone 2
INTERIOR
- Pex Plumbing with Legend Smart Click Fittings
- Upgraded Lino Throughout
- Ceiling Fan in Living Room
- 2” Blinds Throughout
- Programmable Thermostat
KITCHEN
- 3/4” Hardwood Cabinet Doors
- Lined Overhead Cabinets
- Spring Loaded Faucet with Sprayer
APPLIANCES
- Black Refrigerator
- Black Range
- Black Dishwasher
BATHS
- 60” Fiberglass Shower with Glass Door in Master Bath
- Freestanding Glamour Tub Master Bath
- 54” Fiberglass Tub/Shower Guest Bath
- China Sinks Both Baths
- Double Sinks Master Bath
- Elongated Toilets
UTILITY
- Master Water Shut-Off Valve
POPULAR OPTIONS
- Upgraded Insulation R-38-13-22
- Smart Panel Siding
- Entertainment Center
- Entertainment Center with Electric Fireplace and Wood Shiplap
- A/C Disconnect Box
- Gas Furnace/Gas Range
- 100 Amp Service
- Wind Zone 2
- Stainless Steel Appliance Package
- Plumbed for Ice Maker (SS Appliances Only)
- Ceiling Fan in Master Bedroom
- Overhead Air
- Stainless Steel Microwave Over Range
- Stainless Steel Farmhouse Kitchen Sink
- 50 Gallon Electric Water Heater
- Painted Drywall in Living Room
Specifications Are Subject to Change Without Notice.
